News
Arquitecturaqualificació energètica A Terrassa

Projecte d’un nou edifici plurifamiliar de 15 habitatges i qualificació energètica A

GMG 19/07/18

El passat mes de juny, a GMG hem tancat la redacció d’un nou projecte bàsic per un edifici plurifamiliar d’habitatges que promou l’empresa Celilo Ibèrica.

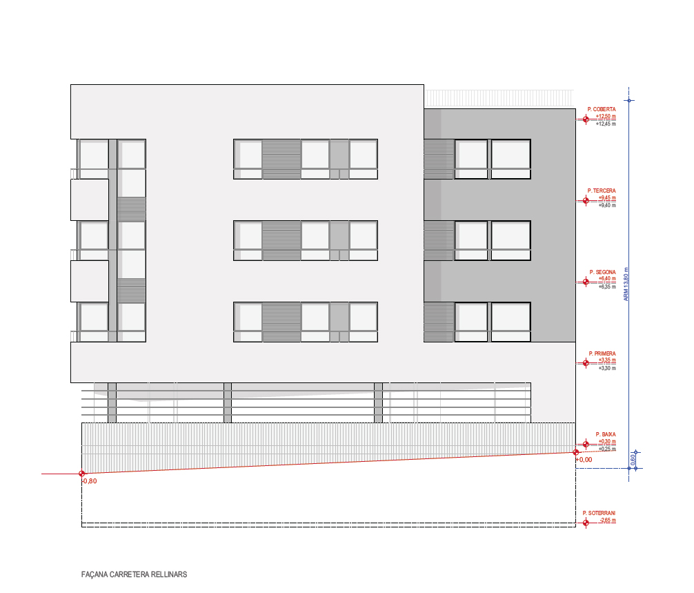
L’edifici de planta baixa i tres plantes pis s’emplaça a Terrassa a la cantonada de la carretera de Rellinars amb el carrer Amadeu de Saboia i contempla la construcció de 15 habitatges amb aparcaments i trasters.

Els habitatges tindran la particularitat de ser especialment amplis, amb superfícies construïdes d’entre 100 i 190 metres quadrats i programes d’entre tres i cinc dormitoris, amb terrasses que es podran utilitzar com a menjadors d’estiu. Tots ells tindran acabats d’alta qualitat i a la planta sotacoberta hem previst uns dúplex invertits, on els residents podran gaudir de les grans terrasses des de la zona de dia.

Sol·licitada la llicència d’obres, iniciem la fase del projecte executiu amb l’objectiu d’assolir la qualificació energètica A. Com és habitual en els projectes de GMG cuidarem molt l’eficiència energètica. Aïllarem especialment la pell exterior de l’edifici i produirem l’aigua calenta sanitària i la climatització amb bombes aerotèrmiques d’alt rendiment. També instal·larem ventilació mecànica als habitatges amb recuperadors entàlpics de calor.

Preveiem finalitzar el projecte executiu al tercer trimestre del 2018 i tancar la licitació de l’edifici per abans de finals d’any.

Treballem per la sostenibilitat, mitigar el canvi climàtic i deixar un món millor a les futures generacions.
Treballem junts
Contacta amb nosaltres

Posa't en contacte amb nosaltres i planificarem la millor manera de treballar junts

gmg@gmg.cat
T. (+34) 93 786 92 45
Carrer Unió 1, 1r
08221 Terrassa (Barcelona)

Apunta't per rebre les nostres notícies